Bankside at Colliers Yard
Al coronamento dell’edificio, l’ultimo livello è realizzato con cellule dotate di vetro smaltato RAL7001, che conferisce un’elegante chiusura formale all’intervento.
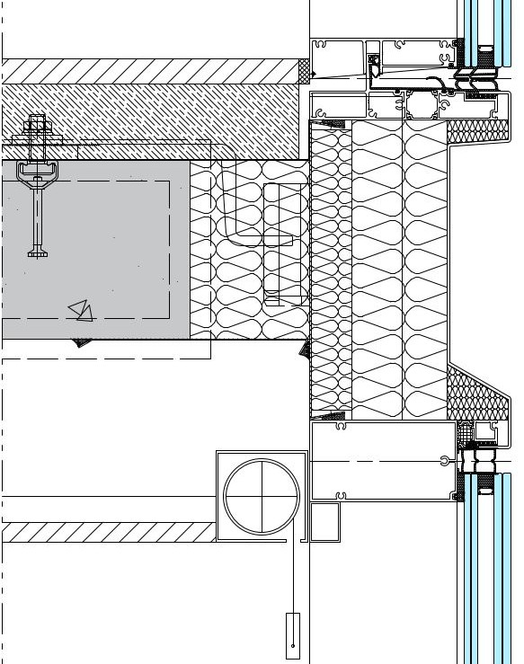
Prestazioni e funzionalità
La facciata è stata progettata per offrire un perfetto equilibrio tra valore estetico, funzionalità e prestazioni tecniche. In particolare, le cellule con “purge vent” sono studiate per garantire una ventilazione efficace, senza compromettere l’aspetto architettonico. Queste cellule sono così composte:
•    Porta ad apertura verso l’interno con bracci limitatori.
•    Profili in alluminio progettati su misura.
•    Parapetto esterno integrati, che garantiscono sicurezza e semplicità d’uso.
•    Vetrocamera ad alte prestazioni, progettato e testato per assicurare la massima efficienza energetica dell’edificio.
Il sistema di facciata è stato ingegnerizzato per soddisfare le esigenze estetiche e prestazionali dell’architetto e del cliente, combinando cellule vetrate a silicone strutturale, pannelli opachi isolati e porte apribili per ventilazione, offrendo così un involucro edilizio ad alte prestazioni, in grado di coniugare comfort abitativo, sostenibilità e qualità costruttiva.
 
Denton Corker Marshall
Denton Corker Marshall
Denton Corker Marshall è uno studio di architettura australiano fondato nel 1972 da John Denton, Bill Corker e Barrie Marshall, compagni di corso alla facoltà di architettura dell’Università di Melbourne. Specializzato in pianificazione urbanistica, architettura di interni e del paesaggio, lo studio annovera sedi anche a Sidney, Hong Kong, Giacarta, Singapore, Ho Chi Minh City, Londra e Varsavia, e conta tra i suoi clienti grandi compagnie private ed enti governativi sia australiani sia internazionali. Lo studio ha sviluppato progetti a tutte le scale, dalla residenza privata ai piani di riqualificazione urbana, ricevendo numerosi premi e riconoscimenti. Nel 1996 i tre titolari dello studio sono stati insigniti della medaglia d’oro del Royal Australian Institute of Architects.
Bankside at Colliers Yard

Bankside at Colliers Yard

L’area di Colliers Yard contribuisce alla creazione di una nuova e vivace comunità, a pochi minuti dal centro di Manchester

Project Specs

  • Luogo: Manchester
  • Developer: Settio
  • Contractor: Renaker Build Ltd
  • Stato: Completato 2025
SEE ON STREETVIEW

Technology

Bankside at Colliers Yard

INVOLUCRO EDILIZIO

L’espressione architettonica della torre si fonda su una sequenza verticale di pannelli ossidati neri o argento, enfatizzata da fasce orizzontali recesse di lamiera in alluminio ossidate nere, interrotte visivamente da una griglia irregolare in alluminio anodizzato nero che conferisce profondità, ritmo e varietà alla facciata. L’ingresso principale degli alloggi, posizionato direttamente su Collier Square, consolida la connessione tra spazio pubblico e privato, e contribuisce alla vivacità dell’ambiente urbano.

Main Façade

Uno degli elementi più distintivi del progetto è il sistema di facciata continua a cellule, che conferisce all’edificio una forte identità architettonica. La facciata è costituita da una sequenza modulare di elementi, tra cui:
•    Cellule vetrate con vetrocamera ad alte prestazioni (DGU).
•    Cellule opache, rivestite in lamiera anodizzata nera e argento, disposte secondo un motivo a scacchiera che valorizza la geometria del prospetto.
•    Cellule con recessi orizzontali ogni cinque piani, che donano articolazione e profondità all’edificio.
•    Cellule con lamiera forata, posizionate davanti ai “purge vent” (porte per ventilazione dell’appartamento), integrate col pattern di facciata per garantire continuità visiva.
 

Designed by

Denton Corker Marshall Architetti

Live Project

Il complesso di Colliers Yard rappresenta un vivace quartiere di Greengate, un'area ricca di patrimonio industriale nel centro di Manchester. Comprende residenze di pregio disposte su tre torri che vanno dai 41 ai 51 piani di altezza, ciascuna eretta su complessi e curati podi in mattoni. 

La torre Bankside si staglia fino al 43° piano con un totale di 444 alloggi, compresi in una gamma di appartamenti e attici di lusso con 1, 2 e 3 camere da letto; offre inoltre diversi servizi condominiali di altissimo livello.

Traendo ispirazione dalla sua storia vittoriana, queste torri mescolano il patrimonio esistente con l'architettura del ventunesimo secolo, attraversando vecchie strade con nuovi percorsi, per costruire un nuovo quartiere con un'anima fortemente radicata nel contesto urbanistico. Questo quartiere è inoltre circondato da spazi pubblici di pregio, compreso un nuovo parco pubblico paesaggistico, un viale alberato e una piazza. Nel Masterplan generale è prevista anche la riqualificazione di celebri edifici che rappresentano un’istituzione della zona, come il pub Eagle Inn e i Blueprint Studios, mentre l'edificio di interesse storico culturale di Grado II *, Collier Street Baths, sarà riportato al suo pieno splendore, diventando un nuovo hub per la comunità locale.