Main Façade
1 Broadgate

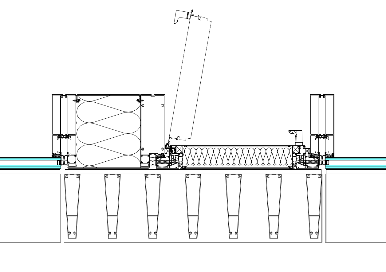
Uno degli aspetti più interessanti del progetto è sicuramente la facciata continua che caratterizza l’edificio principale. Si tratta di un sistema a cellule con vetro ad incollaggio strutturale montate in sequenza, tra cui vengono inserite speciali guarnizioni in EPDM che garantiscono una perfetta tenuta sia verticale che orizzontale, oltre a consentire un corretto drenaggio. La precisione nella realizzazione è notevole: ogni cellula è fissata tramite un sistema di staffe che permette anche piccole regolazioni tridimensionali, assicurando così un risultato visivamente impeccabile. Le cellule spandrel, che caratterizzano la facciata, incorporano sistemi attivi quali apribili ad anta, pluviali per raccolta acque piovane, plenum e louvre di ventilazione nascosti dietro pannelli in lamiera perforata.  Sono costituite da un reticolo di montanti e traversi in alluminio estruso EN AW-6063 T6, assemblati con cura mediante viti e silicone. Al loro interno è inserita una vetrocamera di ultima generazione. Questa vetrocamera è formata da due lastre di vetro stratificato con intercapedine riempita per il 90% da gas Argon, a garanzia di ottime prestazioni termiche e acustiche.

1 Broadgate

Le cellule sono composte da telai in alluminio sui quali viene applicata la vetrocamera mediante incollaggio con silicone strutturale, sia per i vetri vision per gli spandrel. Sul perimetro di ogni cellula sono applicati telai vulcanizzati a formare la prima barriera di tenuta. Sul lato esterno dei traversi sono installate delle fin orizzontali in corrispondenza dello stack joint che danno continuità agli elementi aggettanti delle unit spandrel.
Un elemento distintivo del progetto sono appunto le unit spandrel caratterizzate dalla presenza di fin verticali estruse in alluminio verniciato, di particolare impatto visivo, disposte con un interasse di 150mm tra loro che si uniscono alle fin orizzontali. Questi elementi contribuiscono principalmente all’estetica dell’insieme ma permettono anche la ventilazione naturale attraverso l’impiego di apribili ad anta inseriti nelle cellule spandrel. Si utilizzano vetrocamera speciali e pannelli di lana ad alta densità, chiusi da lamiere in alluminio e acciao per assicurare durata e resistenza.
Non manca l'attenzione alla funzionalità: le cellule spandrel nascondono al loro interno un sistema di   pluviali in cascata che raccolgono e convogliano le acque piovane dei terrazzi, questo grazie ad una soluzione tecnica perfettamente integrata e senza compromettere l'estetica.
Lo stesso avviene per gli impianti di ventilazione attivi che sono collegati alle cellule e scambiano con l’esterno attraverso dei plenum e louvre svilupparti ad-hoc per essere inseriti nelle cellule spandrel.

Allford Hall Monaghan Morris
Allford Hall Monaghan Morris

Fin dalle prime collaborazioni dei soci fondatori durante l’Università, lo Studio Allford Hall Monaghan Morris si è basato su un fermo impegno per la progettazione di edifici a basso costo, eleganti e piacevoli: progetti che riflettono una continua convinzione nell'abilità della architettura di qualità di durare nel tempo; edifici il cui successo è definito non solo dallo scopo per il quale sono stati commissionati, ma dalla loro capacità di adattarsi ai diversi usi; edifici che mirano a dare un contributo positivo e duraturo alla città che li circonda; edifici che fanno da cornice alla città e sono teatro della vita quotidiana, ma che possono essere, di per sé, straordinari.

L'obiettivo principale dello Studio, quindi, è stato il design degli edifici quotidiani nelle città, con la convinzione che tali edifici possano, attraverso una progettazione intelligente e una metodologia professionale, essere resi straordinari.

Più di 30 anni sul campo hanno rafforzato i principi fondamentali che:

  • il lavoro dovrebbe essere guidato da un approccio strategico alla progettazione che riconosca che i cambiamenti nelle circostanze e nel contesto, sia durante la progettazione che durante la vita dell'edificio,
  • il progetto dovrebbe affrontare e migliorare la sua relazione sia con il pubblico che serve sia con gli spazi pubblici che lo circondano e, non da ultimo, apportando piacere visivo
  • la progettazione dovrebbe fare di più con meno; stabilendo i migliori standard di design, indipendentemente dal costo o dal programma; e rimanendo generosa di spirito e sempre ottimista
  • il focus è l’architettura e la costante verifica dei confini della sua applicazione.

 

1 Broadgate

1 Broadgate

Le priorità del progetto sono il benessere e la sostenibilità, con un design intelligente per migliorare l'esperienza dell'utente e fornire agli occupanti condizioni interne ottimali

Project Specs

  • Location: Londra
  • Cliente: British Land & GIC
  • Contractor: Sir Robert McAlpine
  • Anno di completamento: 2025
SEE ON STREETVIEW

Technology

1 Broadgate

SISTEMI UTILIZZATI

Cellule complesse composte da specchiature vetrate fisse alternate a cellule spandrel con fin esterne verniciate in 19 tonalità differenti, disposte in ordine preciso con toni scuri dal basso a sfumare nei colori chiari verso la sommità. 
Realizzazione di fioriere in acciaio inox rivestite da lamiere rainscreen in alluminio, con la funzione di parapetto. Controsoffitti in legno composti da doghe in pino naturale. Controsoffitti in alluminio. Pluviali di drenaggio acqua integrati in facciata.

Facciata a montanti e traversi in alluminio e sistemi in acciaio saldato con profili riportati, con vetrocamera e pannelli ritenuti mediante sistema a chiavette. 
Parapetti vetrati con sistema di ancoraggio nascosto alla base. Facciate ventilate in pietra Moleanos curvo e in travertino. Controsoffitti in pannelli di GFRC fibro-cemento curvi. Porte e 

Designed by

Allford Hall Monaghan Morris

1 Broadgate è un importante complesso direzionale di 14 piani, situato nella parte meridionale del distretto di Broadgate, adiacente alla stazione di Liverpool Street. Fornisce un moderno spazio flessibile con circa 14.000 metri quadrati di negozi, disposti attorno ad una nuova galleria commerciale, su quattro livelli e 37.200 metri quadrati di nuovi uffici nei piani superiori. I volumi del livello inferiore si separano creando ingressi e portici commerciali attraverso l'edificio, definendone così i bordi pedonali; questi formano anche la sagoma del podio retail su cui sono sovrapposti i piani degli uffici. Il design multicolore e autunnale è studiato per minimizzare la percezione della massa dell’edificio, e prevede la realizzazione di ampie terrazze, per un totale di oltre 4.000 metri quadrati di spazio verde, a disposizione degli utenti. L'edificio si integra con l'esistente Broadgate Estate e 100 Liverpool Street, creando un’importante arteria ininterrotta, che va dall'atrio della stazione fino a Finsbury Avenue Square.

Gli obiettivi chiave per questo progetto sono salvaguardare l'efficienza, fornire flessibilità d'uso per i futuri occupanti e garantire elevati standard di sostenibilità ambientale. Per la progettazione è stato adottato un approccio basato sul ciclo di vita completo del carbonio, incluso il carbonio incorporato della costruzione fin nei minimi dettagli, per fare in modo che l'edificio sia operante con emissioni di carbonio minime e con il minor consumo energetico possibile.
L'involucro edilizio è sviluppato in un "kit di parti" in funzione delle diverse destinazioni d’uso, dei livelli di altezza, dell'orientamento e dei requisiti prestazionali del rivestimento, consentendo all'edificio di adattarsi e rispondere ad ogni esigenza futura. I colori dei prospetti riprendono quelli degli edifici circostanti; le fin metalliche sono colorate per sottolineare i volumi sovrapposti dell'edificio, oscurandosi gradualmente dalla base verso l'alto. Il progetto prevede diverse tipologie di facciate vetrate, sistemi di ombreggiamento, davanzali rialzati, elevata trasmissione della luce e controllo solare, al fine di ottimizzare la luce diurna e l’irraggiamento solare.
Il progetto è certificato WireScored “Platinum” e BREEAM “Outstanding”.

Photos

Charles Hosea