125 West 57th Street

Mock-Up Prestazionale e Test di Validazione

Per garantire la conformità ai rigorosi criteri prestazionali del progetto, un mock-up in scala reale è stato sottoposto a un programma completo di prove presso il laboratorio Intertek-ATI.

Il programma di validazione ha incluso:

Permeabilità all’aria e all’acqua: prove rigorose in conformità alle normative ASTM E283, ASTM E331 e AAMA 501.1.
Movimenti strutturali e sismici: il mock-up ha superato con successo le prove di drift interpiano e movimento sismico secondo AAMA 501.7 e AAMA 501.4.


Prestazioni Termiche e Analisi della Condensa

È stata condotta un’analisi termica completa per verificare che il sistema di facciata soddisfacesse i requisiti energetici del progetto. Utilizzando i software THERM 7 / WINDOW 7, il valore di trasmittanza termica (U-value) di ciascun sistema è risultato superiore ai requisiti richiesti.

Risultati di verifica della Trasmittanza (U-value)

WT-1A (Vision):
U-value ottenuto: 0.28 Btu/h⋅ft²⋅°F (Specifica di progetto: 0.33 Btu/h⋅ft²⋅°F)

WT-1B (Shadow-box):
U-value ottenuto: 0.20 Btu/h⋅ft²⋅°F (Specifica di progetto: 0.21 Btu/h⋅ft²⋅°F)

WT-2A (Vision panel):
U-value ottenuto: 0.19 Btu/h⋅ft²⋅°F (Specifica di progetto: 0.75 Btu/h⋅ft²⋅°F)

È stata inoltre eseguita un’analisi del rischio di condensa, che ha confermato come il design prevenga la formazione di condensa nelle condizioni invernali previste, garantendo comfort agli occupanti e durabilità nel lungo periodo.

125 West 57th Street
FX Collaborative
FX Collaborative

FXCollaborative is a New York City-based architecture, interiors, and planning design firm. Founded in 1978, the firm leverages broad experience to enrich our world with responsible, intelligent, and beautiful design.

The firm’s holistic approach integrates client aspirations, an urban sensibility, and a celebration of the craft of building. FXCollaborative’s work ranges from the scale of individual buildings and interiors—office towers, multi-family residences, cultural facilities, workplace, K-12 and higher-education institutions—to the city as a whole, addressing infrastructure and transportation.

125 West 57th Street

125 West 57th Street

The Crown jewel of the Plaza District

Project Specs

  • Location: New York
  • Developer: Alchemy ABR Investment Partners - Cain International
  • Construction Manager: LBG Leeding Builders Group
  • Glazing Contractor: Walsh Glass and Metal
  • Anno di completamento: 2026
SEE ON STREETVIEW

Sistemi utilizzati

125 West 57th Street

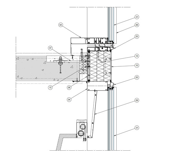
La visione architettonica ha richiesto una varietà di sistemi di facciata complessi per la torre e il podio dell’edificio, ciascuno con caratteristiche estetiche e prestazionali uniche.

Il Developer e il team di progettazione hanno collaborato con Focchi per creare un sistema di facciata continua a cellule composto da vetrate TGU ultra-isolate, a tutt’altezza. Questo design innovativo e ad alta efficienza energetica ha permesso allo sviluppatore di ottenere un incentivo energetico soddisfacendo i requisiti del programma Zone Green di New York.

 

Sistemi di Facciata della Torre (WT-1 & WT-2)

La torre è rivestita con un sistema di facciata a cellule customizzato, dotato di profili ad incastro avanzati per garantire elevate prestazioni strutturali e di tenuta agli agenti atmosferici.

Vetrate:
I pannelli integrano una vetrocamera doppia ad alte prestazioni (TGU – Triple Glazed Unit) composta da vetro temperato, vetro low-iron e mid-iron, con coating basso emissivo HP Neutral 50/32 per un’efficienza energetica ottimale. I moduli shadow-box utilizzano invece una vetrocamera doppia.

Finiture:
È stato ottenuto uno schema cromatico dinamico grazie a diversi rivestimenti ad alte prestazioni. I telai interni presentano una finitura personalizzata color Pewter (AAMA 2604), mentre i profili perimetrali esterni sono rifiniti in Beige Metallizzato (AAMA 2605).

Designed by

FX Collaborative Architects

Il progetto del 125 West 57th Street è un nuovo edificio di 26 piani che sorge lungo la Billionaires' Row a Midtown, Manhattan. Progettata da FXCollaborative e sviluppata da Alchemy-ABR Investment Partners e Cain International, la struttura alta 440 piedi si estende su 260.000 piedi quadrati e crea 185.000 piedi quadrati di nuovi spazi per uffici di Classe A e 7.000 piedi quadrati di zona commerciale. L'edificio ospita anche una rigenerata sede per la storica Chiesa Battista del Calvario. Occupando il sito sin dal 1883, la chiesa è perfettamente integrata nell'attuale urbanizzazione, preservando la sua presenza di lunga data nella comunità.

Leading Builders Group è il general contractor della proprietà, che si trova in un lotto tra la Sesta e la Settima Avenue.

La facciata è composta principalmente da vetro riflettente con montanti metallici sul podio e semplici divisioni nere sopra. I primi presentano un design vivace che incorpora un mix di posizionamento sfalsato e alcune geometrie fluide a forma di goccia. Il podio è sormontato da una terrazza paesaggistica, seguita da livelli meccanici come indicato dalla presenza di griglie di ventilazione.

L'ingresso principale situato all'angolo occidentale della proprietà insieme ad una pensilina che si estende sul marciapiede e un atrio a doppia altezza con il numero 125 esposto in grassetto dietro un vetro trasparente. Nuovi marciapiedi alberati circondano la facciata commerciale immediatamente adiacente e, all'estremità opposta del primo livello, si trova l'ingresso alla Chiesa Battista del Calvario. Questo è evidenziato da una croce sopra le porte d'ingresso e da un vuoto a più livelli tagliato nella volumetria dei piani inferiori.

Photos by

Tectonic Photo