Main Façade Technology
Paddington Square

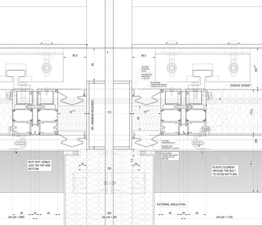
La cavità leggermente ventilata ha una guarnizione su misura progettata per garantire una ventilazione naturale sufficiente, fornendo al contempo tenuta da pioggia e rumore esterni. Il design è stato supportato da dettagliati modelli strutturali (FEM) della facciata, inclusa l'analisi fluidodinamica computazionale (CFD) per garantire il comportamento dell'involucro entro gli ambiziosi obiettivi di prestazione termica.

Un'altra sfida è stata posta dal grande "wing wall" sporgente: in ogni angolo dell'edificio, la pelle esterna della facciata è a sbalzo di 1,5 m dal bordo della soletta. È costituito da una piastra di rinforzo su misura inserita all'interno dei traversi dell'ultima cellula, che funge da distribuzione di tensione e compressione nelle sue parti superiore e inferiore. La posa in opera di queste ultime cellule ha richiesto l'utilizzo di un carrello di lancio su misura, che abbiamo progettato e realizzato artigianalmente nel nostro stabilimento.

Paddington Square

Le solette ad angolo che sostengono la struttura si trovano all'esterno, ciò ha richiesto la progettazione di una speciale una guarnizione a fisarmonica intorno alle penetrazioni e una cellula divisa in due con collare prefabbricato, isolato termicamente, installato dal pavimento intorno alle penetrazioni in acciaio.

Il nostro ufficio R&D ha concepito una soluzione ad hoc per il design dei dispositivi di ombreggiatura esterni (in alluminio pressofuso) per adattarli all'alluminio estruso, risparmiando così sui costi senza compromettere l'estetica.

Renzo Piano Building Workshop (RPBW)
Renzo Piano Building Workshop (RPBW)
Nato a Genova nel 1937 in una famiglia di costruttori. Si laurea nel 1964 al Politecnico di Milano. È tra i più noti e attivi architetti a livello internazionale, vincitore del Premio Pritzker consegnatogli dal Presidente degli Stati Uniti Bill Clinton alla Casa Bianca nel 1998. Ha vinto inoltre altri prestigiosi premi tra cui: Premio Imperiale 1995, Leone d’oro alla carriera nel 2000 e il Premio Sonning nel 2008. Nel 1969, a seguito della crescente fama nazionale, dovuta anche alla pubblicazione delle opere sulle riviste del settore (Domus e Casabella), Piano realizza il padiglione per l'industria italiana all'Esposizione Universale del 1970 a Osaka. Nel 1981 Piano fonda il Renzo Piano Building Workshop (RPBW), con uffici a Genova, Parigi e New York. Nel 1988 il comune di Genova gli affida l'incarico di ristrutturare il Porto Antico, in vista delle Celebrazioni Colombiane (Expo '92 Genova), festeggiamento dei 500 anni della scoperta dell'America. Nel 1994 vince il concorso internazionale per il nuovo Auditorium Parco della Musica di Roma, inaugurato nel 2002. Nel 2004 porta a compimento la Chiesa di Padre Pio a San Giovanni Rotondo Nel 2006 diventa il primo italiano inserito da TIME nell'elenco delle 100 personalità più influenti del mondo, nonché tra le dieci più importanti del mondo nella categoria Arte ed intrattenimento. Nel 2008, dopo quasi dieci anni di progettazione e lavori, viene inaugurata poi la California Academy of Sciences di San Francisco, uno tra gli edifici più eco-sostenibili al mondo per la ricercatezza con cui sono stati scelti i materiali.
Adamson Associates
Adamson Associates
Adamson Associates Architects nasce a Toronto nel 1934 e ad oggi è considerato uno studio d’architettura di primordine, offrendo una vasta gamma di servizi di architettura, progettazione, interior e urban design. Il suo portfolio racchiude tutti i principali settori del mercato: commerciale; culturale; alberghiero e residenziale; giustizia; college e università; ospedali e sanità; aeroporti e centri di trasporto; e siti di sviluppo multifunzionale su larga scala. È negli anni ’80 che lo studio conquista il mercato globale. Adamson contribuisce con le sue capacità a progetti prestigiosi come il World Financial Center di New York; Canary Wharf a Londra; e Petronas Towers / Kuala Lumpur City Centre in Malesia. Attraverso il lavoro su questi e altri progetti complessi, l'azienda è oggi riconosciuta come un’autorità in materia di progettazione urbana, architettura e tecnologia edilizia. Infatti, si tratta di uno studio integrato di portata globale con uno staff di oltre 450 professionisti in tutto il mondo che lavorano da uffici a: New York City [AAI Architects, P.C.]; Los Angeles [Adamson Associates, Inc.]; e Londra, Inghilterra [Adamson Associates (International) Limited].
Paddington Square

Paddington Square

Il fulcro della riqualificazione dell’area di Paddington

Project Specs

  • Location: Londra
  • Cliente: Sellar Property Group
  • Contractor: Mace
  • Consultant: WSP UK
  • Completato: 2024
SEE ON STREETVIEW

Technology

Paddington Square

SISTEMI UTILIZZATI

L'involucro vetrato progettato e prodotto dal Gruppo Focchi conferisce all'edificio un aspetto elegante e permette alla luce di filtrare anche nei suoi angoli più bui.

La facciata principale di Paddington Square è caratterizzata da un sistema compatto ventilato a doppia pelle con configurazione ad hoc del rivestimento in vetro e delle misure per limitare l'irraggiamento solare (veneziane perforate e frangisole), garantendo così che il vetro non necessiti di alcun trattamento termico per i rischi di shock termico. Questo sistema è costituito da una facciata a doppia pelle caratterizzata da un montante merlato con le fins esterne che fungono da elementi strutturali per la facciata.

Designed by

Renzo Piano Building Workshop (RPBW) Architetti
Adamson Associates Architects

Questo edificio multifunzionale di 17 piani sembra “galleggiare” sul pianterreno.

Dalla piazza, lasciando correre lo sguardo verso l’alto, è impossibile non ammirare la geometria del cubo, espressa dallo schermo quadrato di oltre 50 metri per 50. Questa schermatura è costituita da una facciata a doppia pelle, a protezione dello screen solare con veneziane automatizzate. Il sistema rende l'edificio altamente efficiente sia per il risparmio energetico che per la luce naturale, in grado di penetrare tutti gli ambienti degli uffici.

Il progetto presenta un volume cubico suddiviso in spazi di lavoro di prima qualità, per oltre 4000 persone, offrendo preziose opportunità di lavoro nell'area di Paddington. Le facciate dei piani inferiori saranno arretrate per massimizzare lo spazio pubblico.
Gli ascensori panoramici conducono al 17simo piano, dove l’ampia terrazza del ristorante gode di una vista a 270 ° su Hyde Park, la City e praticamente tutta Westminster.

Al centro di questa trasformazione si trova la nuova grande piazza, formata dall'unione di London Street con la rampa degli arrivi della stazione di Paddington.

Photos

Charles Hosea

Jack Hobhouse