Main Façade
Torri dell'EUR
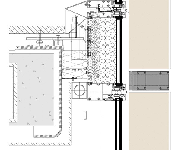
L'installazione della vetrocamera avviene dall'esterno, su appositi supporti e guarnizioni in EPDM, ed è mantenuta in posizione da eleganti fermavetri in alluminio lavorato. Ogni cellula è ulteriormente protetta da telai vulcanizzati per una prima barriera di tenuta.
Un altro elemento distintivo del progetto è la presenza delle specchiature spandrel superiori, arricchite da frangisole orizzontali in alluminio estruso, che contribuiscono non solo all’estetica dell’insieme ma anche al comfort interno degli ambienti. In questa parte della facciata, si utilizzano vetrocamera speciali e pannelli di lana ad alta densità, chiusi da robuste lamiere in sendzimir per assicurare durata e resistenza.
Di particolare impatto visivo sono anche le “Lesene”, elementi verticali sporgenti fino a un metro realizzati in acciaio inox AISI 441, rivestiti con lastre di Travertino Romano, una scelta di materiali che richiama la tradizione storica romana e conferisce al complesso un tono di prestigio e solidità.
Non manca l'attenzione alla funzionalità: molte specchiature sono apribili verso l'esterno grazie a sistemi avanzati che combinano profili in alluminio dedicati, vetrocamera ad alte prestazioni e meccanismi di apertura regolati da bracci limitatori, garantendo così ventilazione naturale senza compromettere l'estetica.
 
UNO-A - Calzoni Architetti - BEMaa
UNO-A - Calzoni Architetti - BEMaa
Torri dell'EUR

Torri dell'EUR

Un progetto con ampie aree esterne e spazi verdi che si connette alla città, stabilendo un rapporto più responsabile con l’ambiente

Project Specs

  • Location: Roma
  • Cliente: Alfiere Spa
  • General Contractor: Carron Costruzioni Generali
  • Completato: 2025
SEE ON STREETVIEW

Technology

Torri dell'EUR

SISTEMI UTILIZZATI

Cellule complesse con specchiature vetrate fisse e apribili con sistema a sporgere, appendici triangolari verticali aggettanti in lastre di travertino (lesene) e banchi frangisole orizzontali in grigliato di acciaio verniciato; Facciata ventilata composta da sottostruttura in lamiera d'acciaio inox rivestita da lastre di travertino romano, fissato con sistema ad aggancio meccanico; Facciata a montanti e traversi con vetro camera high performance, ritenuto con sistema a pressori; Parapetti vetrati con sistema di ancoraggio nascosto alla base; Facciate montanti e traversi e nastri orizzontali vetrati con prestazioni al fuoco fino ad EI120.

MAIN FACADE

Uno degli aspetti più interessanti del progetto è sicuramente la facciata continua che caratterizza gli edifici principali. Si tratta di un sofisticato sistema a cellule montate in sequenza, tra cui vengono inserite speciali guarnizioni in EPDM che garantiscono una perfetta tenuta sia verticale che orizzontale, oltre a consentire un corretto drenaggio. La precisione nella realizzazione è notevole: ogni cellula è fissata tramite un sistema di staffe che permette anche piccole regolazioni tridimensionali, assicurando così un risultato visivamente impeccabile. Le cellule che compongono la facciata sono veri e propri piccoli capolavori di ingegneria. Sono costituite da un reticolo di montanti e traversi in alluminio estruso EN AW-6063 T6, assemblati con cura mediante viti e silicone nelle giunture. Al loro interno è inserita una vetrocamera di ultima generazione, di spessore totale 35,5 mm. Questa vetrocamera è formata da due strati di vetro stratificato con intercapedine riempita per il 90% da gas Argon, a garanzia di ottime prestazioni termiche e acustiche.
 

Designed by

UNO-A - Calzoni Architetti - BEMaa

Il progetto Torri dell'EUR si presenta come un importante complesso edilizio a destinazione commerciale, articolato in cinque edifici distinti. Tre di questi sono delle torri gemelle, ciascuna composta da 17 piani e alta circa 61 metri, mentre gli altri due edifici si sviluppano in larghezza, con una struttura bassa e quadrangolare. Un elemento di unione tra le diverse architetture è il podio centrale, che funge da accesso comune, e una grande piastra interrata.

Il complesso è situato in una posizione strategica, a pochi passi dal suggestivo lago dell’Eur, racchiuso tra via Cristoforo Colombo, viale Europa, via Boston e viale America.

La fusione tra grandi vetrate e rivestimenti in pietra conferisce al progetto un’architettura luminosa che onora la tradizione dell’area, in una nuova logica di attenzione a valori importanti come la qualità della vita e la tutela ambientale. Questo progetto rispetta la struttura originale ma si completa di un nuovo involucro altamente performante in linea con i più avanzati standard internazionali, che ha consentito il raggiungimento delle certificazioni LEED Gold, WELL Certified™ e WiredScore.

In conclusione, questo progetto rappresenta un esempio eccellente di architettura moderna che sa coniugare estetica, funzionalità e innovazione tecnologica, con un’attenzione minuziosa a ogni dettaglio costruttivo. Una realizzazione che contribuisce a valorizzare ulteriormente il panorama urbano dell’Eur.
 

Other Façade Systems